Este site utiliza cookies para permitir a mudança de língua e o armazenamento dos seus imóveis favoritos. Ao utilizar este site, concorda que o mesmo utilize cookies.

Armazém Famões Odivelas

17.500€



Referência

NGI2025-0075

Natureza

Arrendamento

Tipo de Imóvel

Armazém

Tipologia

Não se aplica

Estado

Excelente

Certificado energético

Isento

Ano

2019


Distrito

Lisboa

Concelho

Odivelas

Freguesia

Pontinha e Famões

Código Postal

1685


Área Útil

1910 m2

Área Bruta

1911 m2

Área de Terreno

0 m2



Contactar Imobiliária

*Preenchimento obrigatório
Ao clicar em 'Enviar', declara que aceita a nossa Política de Privacidade.
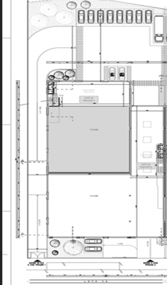
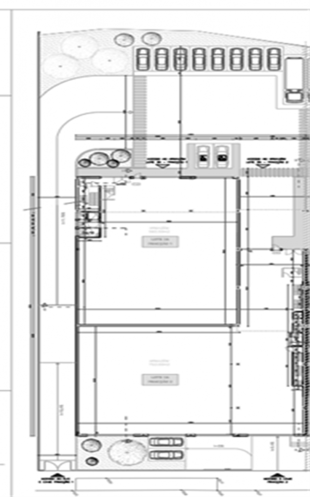
armazém Famões - Odivelas
DISPONIVEL EM JANEIRO DE 2026.
Composto por 2 pisos:
- Rés do chão com 1500m2,  com 2 casas de banho
- 1º Piso com 410m2 de escritório com 2 casas de banho.
Área total: 1910m2
Logradouro exterior privativo, com estacionamento para cerca de 12 viaturas ligeiras + 1 TIR

Nota: À renda mensal de 17500€ acresce o IVA à taxa legal.

Posto de transformação próprio. Monobloco do tipo Kiobet, equipado com transformador Efacec de 630Kva, 15kv, celas de média tensão, incluindo entrada e saída de rede, cela de ganho, cela de contagem, cela de proteção ao transformador e quadro geral de baixa tensão. 
Equipamento completamente equipado, licenciado, eletrificado e pronto a funcionar.

Localizado em zona industrial, com bons acessos a todas as vias rápidas.

Venha conhecer, contacte-nos.
Aguardamos por si

Este imóvel não tem características definidas.

Este imóvel não tem áreas definidas.